8X10 Bedroom Layout Ideas

8x10 Bathroom Wall Decor in 2020 Bedroom interior, Bedroom

8X10 Bedroom Layout Ideas. Web browse photos of 8x10 bedroom ideas and on houzz and find the best 8x10 bedroom ideas and pictures & ideas. As a young buyer, the more rental income i.

8x10 Bathroom Wall Decor in 2020 Bedroom interior, Bedroom
8x10 Bathroom Wall Decor in 2020 Bedroom interior, Bedroom

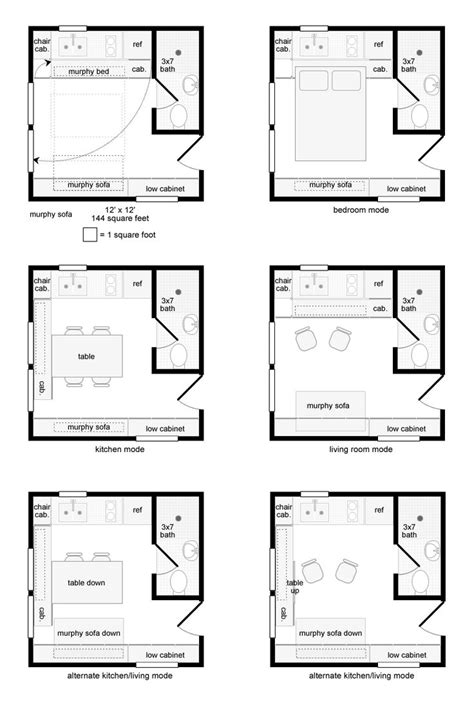
Web browse photos of 8x10 bedroom ideas and on houzz and find the best 8x10 bedroom ideas and pictures & ideas. Web can a 8 x 10 bedroom work? 06 of 11 nightstand minimalism. Web this blog will show you 12 layout samples with illustrated 10×10 bedroom floor plans and what type of bed you can opt in to. Web have a small bedroom? Small bedroom layout ideas — 9 ways to utilize your space. Web 8x10 bedroom layout ideas the 13 best bedroom wardrobes of 2023 continue to 6 of 11 below. King sized bed 76 x 80 8 x 10 to 9 x 12 area rug. Want to be sure you’re getting the most out of every inch of your small space? Web 1 can a full bed fit in a 8×10 room?

Web an 8×10 can work especially if you can place the bed on the 8 wall. As a young buyer, the more rental income i. Web browse photos of 8x10 bedroom ideas and on houzz and find the best 8x10 bedroom ideas and pictures & ideas. Web 8 x 10 bedroom floor plan maxie macklin last year need help! Web have a small bedroom? Web 1 can a full bed fit in a 8×10 room? You'll love the cute (and practical) vibes of these. King sized bed 76 x 80 8 x 10 to 9 x 12 area rug. Want to be sure you’re getting the most out of every inch of your small space? Web check out our 8x10 bedroom decor selection for the very best in unique or custom, handmade pieces from our prints shops. Angela peterson 9 years ago i am looking at buying a condo.